
〉〉产品优势
1、背抽式隐藏设计,解决吊柜空间利用率低的问题
2、释放地柜空间,留给智能厨电更多空间
3、优质铝材,特殊表面工艺,耐热防腐,持久耐用
4、“低碳”动力系统,无级悬停,使用便捷
5、厨房、玄关、餐边柜等多场景收纳应用
6、专利产品,结构新颖
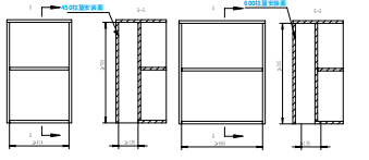
产品尺寸:70X45/60(外)X13.5(净深)cm,下拉44cm
产品重量:承重6-8kg
应用场景:厨房/餐厅/玄关/阳台等吊空间柜
安装方式:背板一体式安装
产品外观:落灼灰RAl+阳极氧化表面处理
◎ 柜体选型表

◇ 安装孔位图

◇ 安装视频
